【机情无限 精彩毕设】机械2022届毕业设计(论文)中期检查优秀案例分享第二十四期
纯电动客车制动关键总成设计及能量回收策略仿真
员工姓名:田明洁
班班级级:车辆2018-02班
指导教师:刘平
毕设题目:纯电动客车制动关键总成设计及能量回收策略仿真


一、概况
1.选题意义
有限的石油资源和日益恶化的环境问题,迫使汽车业必须找到更多的节能新能源汽车,以减少对石油的依赖和环境污染,并确保长期稳定的汽车产业的发展。
发展新能源汽车已经成为今天的社会热点。与传统燃油汽车相比,电动汽车在驾驶距离上却存在致命弱点。在电动汽车上一次充电续驶里程,目前市场上使用的电池一般为100〜300公里,并且这一数字通常需要保持适当的速度、具有良好的电池调节系统情况下才能达到,而绝大多数的电动在正常的驾驶环境下车辆的续驶里程只有50〜100公里。合理使用再生制动,不仅提供汽车刹车的辅助,以改善汽车制动性能,而且还能够回收制动能量,节约能源和延长电动汽车的充电行驶里程。
本题目以宇通某纯电动客车为参考车型,围绕着纯电动城市客车制动关键总成设计及能量回收控制策略的制定、仿真验证两个关键问题展开研究。研究目标为在确保制动安全性的条件下,尽量提高制动能量的回收。
2.任务分解
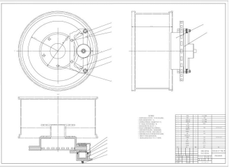
1.确定纯电动车型及基本参数,并对制动系统的结构组成进行分析确定,对电机、电池、制动盘等关键总成进行设计;并进行制动盘的详细绘图。
2.对纯电动大客车制动过程进行受力分析,并根据ECE制动法规的要求确定制动力分配系数的限制范围,为进一步制定控制策略奠定基础。
3.对影响制动能量回收的因素进行分析研究,在此基础上确定电机再生制动转矩的限制值,并制定出合理的纯电动大客车制动能量回收控制策略。
4.采用ADVISOR和MATLAB/SIMULINK的软件联合平台对控制策略进行建模。
5.选取合理的仿真工况和能量回收评价指标,将所建立的制动能量回收控制策略模型进行仿真,然后根据最终得出的仿真结果分析评价该控制策略合理性。
6.根据前文设计计算以及仿真结果进行毕业论文的撰写;并准备毕业设计答辩。
二、已完成工作
1.收集整理资料,确定了车型参数。
2.对所选车型的制动关键总成电机、电池进行了选型设计;对制动盘进行了详细设计计算及验算,并根据所设计的数据进行了绘图。

3.分析了再生制动力和机械摩擦力之间的关系,并就制动基本参数进行了计算,确定了制动力分配系数。
4.根据既有的再生制动控制策略,提出了新的再生制动力控制策略模型。
5.查找外文文献,并进行了翻译;毕业论文进行了初步书写。
6.对仿真软件ADVISOR进行了学习,并初步实现了驱动轴由前轴到后轴的更改,车型基本参数、电机、电池基本参数的修改。


三、下一步工作计划
1、继续深入学习软件ADVISOR,将提出的再生制动力控制策略嵌入ADVISOR中,多种循环工况进行仿真分析。
2、将仿真结果进行分析,根据评价指标,评价控制策略的合理性;若不合理,进行修改。
3、根据前面的设计计算以及仿真结果进行毕业论文的撰写;准备毕业设计答辩。

问题一:整备质量和总质量的区别是什么?为什么你的车型二者相差那么大?
回答:本题目的车型是大型的城市客车,载客量在49人左右,按照标准体重计算,再加上乘客所携带的行李,是满足所标注的质量差的。
问题二:关于你的控制策略,打算如何实现?
回答:我的控制策略主要是在Simulink上进行建模。通过汽车理论的基本知识与Simulink的知识结合,完成一个个小模块的建模,再进行模块之间的连接,实现总的控制策略。比如制动强度计算模块、电机转矩的制动模块进行联合实现总的控制策略,当然电机转矩的制动模块也是由好几个小的模块复合而成的。
主要就是根据车速、时间计算制动强度,再根据制动强度模块的输出值进行判断制动工况并前后轴的制动力,前轴的制动力便是最终前轴的机械制动力,电机转矩的确定模块输出电机再生制动力,此时将进入后轴的电机制动力和机械制动力的复合部分,计算出后轴最终的机械制动力。当然在模块的执行过程中还有一些小的细节,比如如果需求力为正值,判定此时是驱动工况,不进行车辆制动的动作,相应的制动力输出值即为0,等等都是利用Simulink的基础进行表达的。目前已经完成了一部分策略的建模,后续还需要继续学习,来完成完整策略模型的建立。

答辩过程的本身就是对自己毕设题目的审视,从开始填写中期检查报告、制作答辩PPT到站到答辩的讲台上,都是对纯电动客车制动系统的进一步理解,也让我完善了之前有些忽略的小细节。不论是前面关于制动器的设计还是关于后面控制策略嵌入ADVISOR都是比较困难的部分,但是幸运的是在刘老师的指点下,再加上自己一直坚持学习相关知识,这些问题都一一化解了。后面便是将自己控制策略剩下的模块进行Simulink的建模,集成到整车模型进行仿真并分析,得到可靠的数据验证自己策略的合理性。
答辩时老师们提到的问题也让我意识到自己思考不周全的地方,自己需要再去认真完善一下自己毕业设计不足的部分。相信经过接下来几周的不断学习、继续努力,自己会按照设定的进度完成毕业设计,并有一个较好的结果!