【机情无限 精彩毕设】机械2023届毕业设计(论文)中期检查优秀案例分享第十五期——齿轨转向架动态模拟试验台总体方案设计

员工姓名:张海涛
班班级级:车辆2019-01班
指导教师:丁军君
毕设题目:齿轨转向架动态模拟试验台总体方案设计


一、概况
1.选题意义
根据我国的轨道交通发展状况和需求,国家发布相关政策支持,积极促进山区交通旅游业发展,相关企业单位联合研发了山地齿轨铁路系统。国内齿轨铁路未来将主要用于旅游路线和山区铁路支线,具备容易控制工程体量,降低工程成本和难度,兼顾旅游观光新兴体态的特点,有利于实现地势陡峭、高差大的山地旅游交通目标。

图 1国内首列齿轨列车
齿轨铁路是一种特殊的交通形式,它的主要特点在于转向架轮对中间装有走行齿轮,与轨道上铺设的齿条啮合。走行齿轮由电机驱动,在较大坡道上运行时,通过该齿轮与地面齿轨啮合增加列车牵引力,克服粘着力不足的问题,以达到适应大坡度路线的目的。其运行线路坡度一般为120‰,最大可达到480‰

图 2 齿轨转向架驱动示意图
齿轨列车这种新型的齿轨驱动系统结构较为复杂,并且有着传统转向架上没有的新型部件以及传动方式。对于新型车辆的研发,在正式运行前需要做大量的模拟试验和线路试验,确保运行安全性。齿轨转向架有必要先在试验台上进行可靠性验证试验,在试验台验证合格后后才可以进行装车运用考核。
目前国内外已有的试验台只能进行传统轨道轮轨驱动系统的试验,而针对齿轨工况试验,国内的试验台均没有相应的试验装置,因此设计建造齿轨转向架试验台对于齿轨铁路的研究与发展有着十分重要的作用。本课题来源于四川省重大科技专项项目-高端齿轨动车组研制与应用,要求对齿轨转向架的动态模拟试验台总体方案进行设计,能够为齿轨转向架的动态响应及齿轮齿轨啮合试验提供重要参考。因为我国的齿轨铁路发展还在初期探索阶段,各种技术以及齿轨列车动力学特性尚不明确,所以目前齿轨转向架试验台的设计与建设对我国齿轨铁路发展有着至关重要的推动作用,本课题在这方面具有一定的参考意义。

图 3 机车车辆动态模拟试验台
2.任务分解
(1)广泛使用文献检索方法,对关键词相关内容进行检索,调研转向架动态模拟试验台国内外研究现状,为后续研究提供知识储备。
(2)查看相关文献以及专利内容,熟悉了解齿轨转向架的结构原理和部件功能,分析比较齿轨转向架与常规转向架的动态模拟需求异同。熟悉牵引动力国家重点实验室滚振试验台设计,思考传统试验台与齿轨转向架试验台的异同,提供参考意义。
(3) 针对国内Strub齿轨系统,获得相关齿轨转向架与线路的参数后,完成动态模拟试验台总体方案机械部分设计,主要思考以下方面:
a.设计该实验台核心齿轮齿轨啮合机构,可参考中车资阳相关专利,自己进行思考创新。
b.设计相应机械结构,能够实现滚轮轮y、z方向平动,x、y、z方向转动,共五个自由度,以能够实现线路动态模拟。
c.设计相该试验台的核心驱动系统,能够达到对齿轨转向架非传统的驱动方式以及运行线路做到动态模拟。
(4)相关参数(电机功率、试验速度、滚轮尺寸)设计选取,依据国内线路的需求进行计算设定。
(5)利用动力学软件对齿轨试验台的动态行为进行模拟,验证试验台方案的可行性。

图 4 齿轨啮合建模方法
(6)根据前面的设计结果,绘制试验台总体方案和关键部件的图纸
(7)撰写毕设论文
二、已完成工作
1.至今已查阅70+篇文献资料,对选题有了深刻认识。
![]() |
图 5 部分参考文献
2.给出了试验方式、驱动系统、激振系统等多种设计方案。

图 6试验方案

图7 驱动系统设计方案及建模
3.已完成9000字外文参考文献翻译。

图8 英文文献翻译
4.完成绪论、总体方案设计、机械结构设计等12000+字撰写。

图 9 毕业论文撰写
5.完成所有部件建模,170+个零件总装配体。

图10 试验台三维建模图

图11 机械设计结构方案图
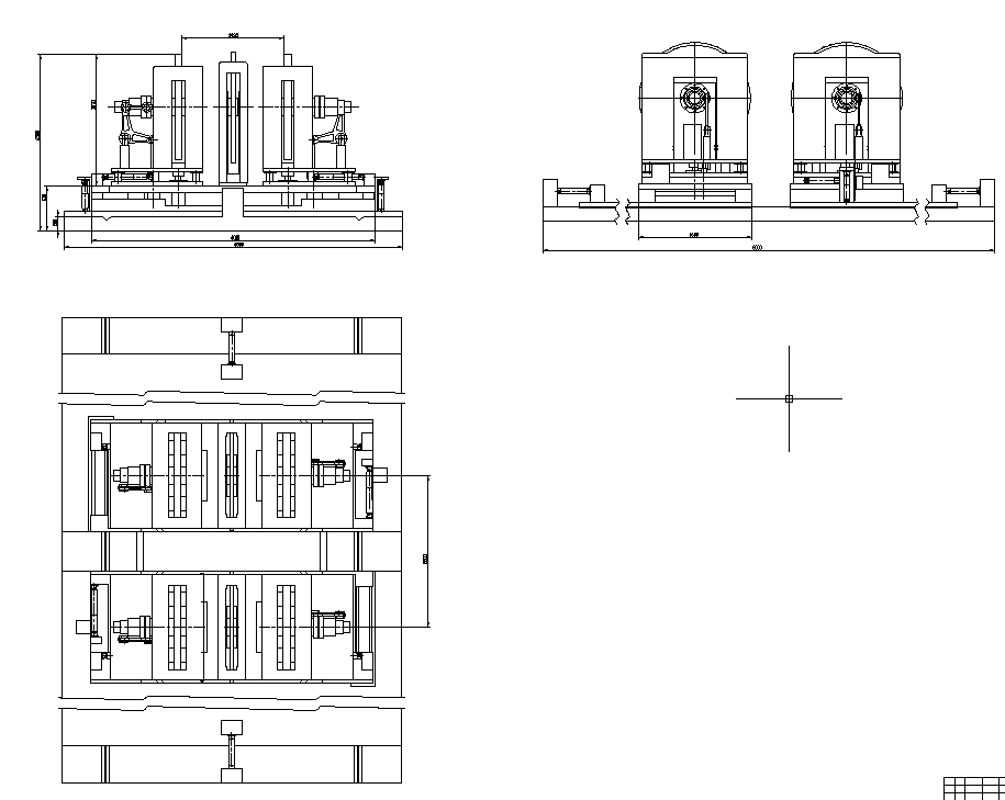
6.已绘制部分齿轨转向架动态模拟试验台工程图

图12 部分CAD图纸
三、下一步工作计划
1.2023年4月7日—2023年5月7日,完成毕业论文撰写工作
2.2023年4月7日—2023年4月15日,完善机械系统结构和相关参数计算
3.2023年4月12日—2023年4月12日,完成两张A0图纸的绘制
4.2023年4月17日—2023年4月29日,试验台simpack动力学建模
5.2023年4月29日—2023年5月4日,完成动力学可行性分析验证
工作计划甘特图:

图13 后续计划甘特图

问题一:该试验台现在能否完成所提出的设计要求?
回答:超高调整还未确定方案,目前有使用推举油缸,弧形基座转动的方案,后续还会做一定调整,但是模型基本上已经完成。
问题二:试验台后续的动力学可行性验证是否有了方案?
回答:对于所要使用的simpack软件已经有所熟悉,但是试验台相关的一些接触力元,齿轮啮合建模方法还在学习中,这也是后续主要的工作。

1.需要加快自己的工作进度,尽快完成后续的工作。
2.三维模型有些地方还比较粗略,还需要做一些优化。
