【机情无限 精彩毕设】机械2024届毕业设计(论文)中期检查优秀案例分享第二十期——米轨机车转向架总体方案设计及车轮磨耗预测研究
员工姓名:黄朝绩
班生姓级:车辆2020-02班
指导教师:丁军君
毕设题目:米轨机车转向架总体方案设计及车轮磨耗预测研究

一、概况
1.选题意义
米轨是一种轨距为1000mm的铁路,主要分布在亚洲和非洲的一些国家和地区。我国的昆河线昆明至河口以及缅甸、越南等国家铁路均为米轨线。米轨机车是在米轨线上运行的机车,其转向架和车轮是机车的重要组成部分,直接影响机车的运行性能和安全性。机车的动力学性能不仅对机车运行品质有重要影响,同时车轮的磨耗也会影响着机车的动力学性能。车轮在运行过程中会受到磨损,导致转向架和车轮的寿命降低,维修成本增加,运行安全性和舒适性下降,甚至可能引发事故。因此,对米轨机车转向架及车轮的磨耗预测研究具有重要的理论意义和实际价值。
1. 对米轨机车转向架的总体设计,确定符合米轨线路的转向架方案,建立动力学模型,对模型进行仿真,分析其动力学性能, 可以验证模型的正确性和优化动力学性能,为车轮磨耗预测做基础准备。
2. 米轨机车车轮的磨耗模型的建立,分析车轮磨耗的规律和影响因素,为车轮磨耗的预测提供一种有效的方法,提高车轮磨耗预测的准确性和可信度。
3. 车轮的磨耗预测的结果可以为车轮的镟修策略提供参考,优化车轮的镟修周期和镟修量,延长车轮的使用寿命,提高车轮的运行效率,降低运营成本,保障运行安全性和舒适性。
2.任务分解
第一部分 | 查找相关文献、翻译外文文献、撰写论文的绪论 |
第二部分 | 确定转向架的主要技术指标、设计转向架模型 |
第三部分 | 建立机车动力学模型模型 |
第四部分 | 机车动力学仿真和动力学性能分析 |
第五部分 | 建立车轮磨耗模型并仿真预测 |
第六部分 | 数据整理、论文撰写及答辩 |
二、已完成工作
(1) 已完成文献查找、外文文献翻译、论文绪论的撰写。
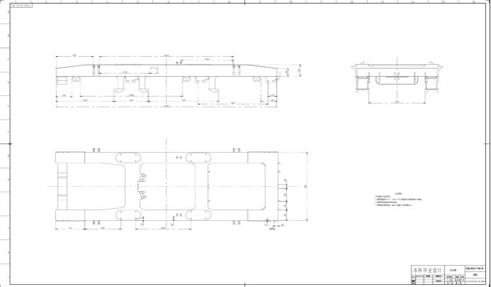
(2) 已完成米轨机车转向架总体方案设计、三维模型设计、A0图纸绘制。
表1-1 米轨机车转向架主要技术指标
图1-1 转向架三维模型
图1-2 转向架A0图纸
图1-3 构架A0图纸
(3) 使用多体动力学软件UM完成机车动力学模型设计,对一系悬挂、二系悬挂设置了刚度和阻尼。
图1-4 轮对电机组装的动力学模型
图1-5 转向架的动力学模型
图1-6 机车的动力学模型
(4) 建立了简化的机车力学模型,使用Matlab计算了轴重转移,机车的黏着利用率达到了91.88%,满足牵引要求。
图1-7 机车简化的力学模型
图1-8 轴重转移计算程序
图1-9 轴重转移和黏着利用率计算结果
(5) 仿真计算了机车的非线性临界速度,非线性临界速度为153km/h至159km/h,满足最高运用速度90km/h的要求。
图1-10 非线性临界速度计算结果
机车以不同的速度通过一段长为750m的直线,线路不平顺等级为美国5级线路,包括线路的横向和垂向不平顺。测量的动力学指标包括垂向和横向平稳性指标。
图1-11 垂向和横向平稳性计算结果
机车运行速度≤80km/h时,横向和垂向平稳性指标均小于2.75,达到优等级。
(6) 已学习多体动力学软件UM关于车轮磨耗的仿真流程和方法,基于Archard磨耗模型尝试使用软件自带模型做20万km的车轮磨耗仿真。
图1-12 车轮磨耗仿真结果
二、下一步工作计划
(1)完成机车所需试验工况的动力学仿真并统计动力学指标数据,汇总并评估模型是否满足设计要求。
(2)完成机车在不同工况下的车轮磨耗仿真,并分析其可行性,对车轮璇修给出更合理的方案策略。
(3)汇总整理数据、得出相关结论、完成论文撰写及答辩。

问题一:在后续研究工作中你打算用什么车轮磨耗模型做仿真?
回答:我将使用Archard磨耗模型做仿真计算。
问题二:你的车轮选取的材料是什么?磨耗仿真中是关于什么参数开展磨耗研究的?是不同轴重还是不同的曲线半径?
回答:我选取的是整体辗钢车轮,关于车轮磨耗选取车轮硬度值会在下一阶段中考虑。磨耗主要考虑的参数是不同线路工况,可以在后续研究中考虑做不同轴重等参数关于磨耗的研究。

在这次中期答辩中,详细汇报了当前所做工作,对毕业设计的理解更深刻,收获良多,同时老师也提出了之前没有考虑到的细节问题,可以为下一阶段做好安排。本次答辩也加强了我的科研思维的培养,在准备答辩的过程中,我逐渐培养起了独立思考和创新解决问题的思维。答辩还锻炼了我的表达能力和逻辑思维能力,在某些方面的不足会成为我未来学习的方向。
毕业设计是大学四年所学知识的汇总,也是一个人学习能力和学习态度的检验,这次毕业设计让我自学了多个软件的使用和相关理论的学习,对车辆动力学研究有了更深的理解,也体会到了科研的不易,需要的是耐心和毅力,要不断地尝试,同时我也体会到了团队协作的重要性,一个人无法解决的问题可以寻求外部帮助,或许老师和同学的一句话就能拨云见日,学习他人的科研方法也会快速提高自己的能力。在设计中自己的想法不一定是正确的,需要实践检验才能验证。在设计过程中,对模型建立、分析计算、数据汇总处理等方面遇到一些难题,通过和指导老师的沟通和同学们的交流,自己多次尝试后能成功解决困难。
在未来的研究中,我会继续努力,不断提升自己的能力和水平。