【机情无限 精彩毕设】机械2025届毕业设计(论文)中期检查优秀案例分享第十期——武汉市某办公大楼中央空调设计
员工姓名:吕锦怡
班 级:建环2021-02班
指导教师:苏小文
毕设题目:武汉市某办公大楼中央空调设计
一、概况
1.选题意义
随着国民经济的快速发展、人民生活水平的大大提高,空调的应用已越来越普及,而在现实生活中,空调系统的制冷供热也成为了能源消耗的一大源头。近年来,中央空调技术不断更新换代,节能技术、智能控制系统和绿色环保技术层出不穷。如何将这些先进技术与武汉地区的实际需求相结合,成为中央空调设计过程中亟待解决的重要问题。
本次设计课题为“武汉某办公大楼中央空调设计”,属于典型的甲类公共建筑。该建筑占地1430.35m2,总建筑面积为5592.92m2,其中空调区面积为4423.49m2。武汉地处夏热冬冷地区,夏季高温湿润,室外计算温度为35.2℃,相对湿度为67%;冬季寒冷干燥,室外计算温度为-2.6℃,相对湿度为77%,。尤其在夏季高温期间,空调系统不仅需要为室内环境提供舒适性保障,还必须实现相对高效节能的运行,以减少能源消耗,一定程度上降低资源压力。本设计旨在依据建筑功能以及所处地理位置,运用所学知识,通过对其舒适性、经济性等多方面考虑,来设计出一个合理的暖通空调系统,以营造舒适且高效的室内环境。
从此次工程意义来看,随着城市化进程的加速,中央空调普及率的提高,空调系统的设计施工和运行管理已然成为一门独立的学科,在此期间,越来越多针对空调系统的规范和管理也逐渐细节化,暖通空调工程设计的重要性日渐凸显。同时伴随着武汉的商务楼宇和办公大楼数量迅速增长,空调系统在办公空间中的应用需求不断提升。中央空调设计不仅是满足办公空间舒适性和健康性的关键,更直接关系到建筑的能效水平与环境影响。科学合理的中央空调设计,不仅能够提高建筑的运营效率,还能在降低能耗的同时促进可持续发展。
本次工程设计旨在分析如今国内外中央空调设计的现状,结合武汉当地特点,通过研究提高空调系统能效、舒适性和环保性的方法,最终完成符合武汉地区特点的合理且较为高效的办公大楼中央空调设计方案。
2.任务分解
现将此次毕业设计的任务分解如下:
(1)资料收集与整理:收集该项目的相关资料,包括对武汉市室外计算参数的查询以及办公楼相关设计规范查询,分析建筑的房间功能、人员密度、设备照明等,明确中央空调系统设计的基本需求,熟悉图纸,为后续计算做好准备。
(2)负荷计算:根据公共建筑设计相关规范,选取一个特殊房间进行手算和软件计算的对比,当最大冷负荷的误差控制在10%以内,就可以继续对夏季工况和冬季工况的空调负荷分别进行计算,相同建筑物标准层负荷可采取成果共享的方式完成该建筑物总负荷计算,最后汇总出总的冷热负荷和指标。
(3)冷热源设备选型:根据武汉市资源情况,优先考虑可再生能源,再根据现有的一些冷热源方案进行初筛,从中挑选几个方案进行经济性分析,最终选出技术上和经济上合理的冷热源设备,作为本次项目的冷热源方案。
(4)空调系统方案设计:结合建筑特点和负荷需求,综合考虑节能性、经济性等,给出节能优化设计。
(5)空调过程计算:对各分区空调进行夏季空气处理过程的计算,得到空气处理过程各状态点的参数以及送风量,回风量,新风量的确定。
(5)空调风水系统设计:对各分区风系统进行气流组织计算,分析气流组织布置的合理性,再对风系统进行详细的水力计算。对水系统进行分区,考虑水系统,冷却水和冷冻水系统水管布置合理性,以及水系统的水力计算和设备选型计算。
(7)通风和防排烟设计:根据相关规范,对大楼各个房间进行通风和防排烟设计。
(8)保温、隔声,隔振设计:根据设计相关规范,对保温隔声隔振进行合理的设计,以大楼内工作人员的舒适性以及设备运行的节能性,同时降低对环境的污染。
(9)绘图纸制:各层平面图、系统图(或剖面图),制冷机房平面图、工艺流程图的绘制。
(10)设计说明书及计算书:在毕业设计中总结归纳,撰写计算书及设计说明书,准备后面的评阅以及毕业答辩。
二、已完成工作
1.进行了国内外相关研究文献的阅读,从空调设计参数、冷热源选择、空气处理方案、气流组织设计、空调水系统、空调风系统等这六个方面进行了国内外现状的总结,并且在此基础上编写了初步的文献综述,此外完成了外文文献的翻译;

图1. 外文文献翻译部分展示
2.完成了项目当地气象参数等数据的收集,进行负荷计算,以一层东南角办公室业务处为例,手算了其夏季的冷负荷,并与天正暖通软件的机算结果进行比对校核,要求总误差在5%以内,部分手算负荷表如图2所示,手算与机算对比如3所示。再误差满足设计要求后,用软件进行了整栋办公楼的机算,负荷汇总如图4所示;

图2. 部分手算负荷结果

图3. 负荷手算与机算对比

图4. 办公楼冷热负荷汇总
3.结合当地的气候资源等地理特征,选取了几种冷热源进行分析考虑如图5所示。再通过对冷热源的技术可行性和经济性分析,初步确定了项目的冷热源方案为方案二的“地表水水源热泵”,其中经济性对比如图6所示;

图5. 冷热源选型表

图6. 冷热源方案经济性对比
4.考虑空气处理方案、房间功能及室内设计参数等多方面,完成了系统的分区,部分如图7所示。然后选取了典型房间进行空调系统设计的计算并且绘制冬夏季空气处理过程图以及焓湿图,其中全空气系统以三层大型阅览中心为例,空气处理过程如图8图9所示。再根据计算结果,考虑1.1倍安全系数,同时以满足冷量为前提,进行了空气处理机组的初步选型。


图7. 办公楼一、三层空调分区示意图

图8. AHU系统夏季处理过程 图9.AHU系统冬季处理过程
5.确定建筑的送风方式包括上送上回和单侧喷口送风,选取典型房间进行气流组织计算,确定送风口的尺寸后对流速和射程进行校核,随之再进一步完善布置方案。其中一层中庭采用单侧喷口送风,在中庭的西墙安装球形喷口来承担门厅和走廊的负荷,如图10所示。

图10. 一层中庭喷口送风示意图
6.初步完成典型房间的风管布置以及相应的水力计算,确定最不利环路并进行机组的校核要求管道的不平衡率低于15%。以一层办公区新风管道布置为例,水力计算结果显示最不利环路为1-2-3-4-5-6-7-8-11-12-13,最不利阻力为89Pa,最后再与空气处理机组额定机外余压195Pa进行校核,在不满足不平衡率的管道上安装平衡阀。

图11. 一层办公区新风管道布置示意图

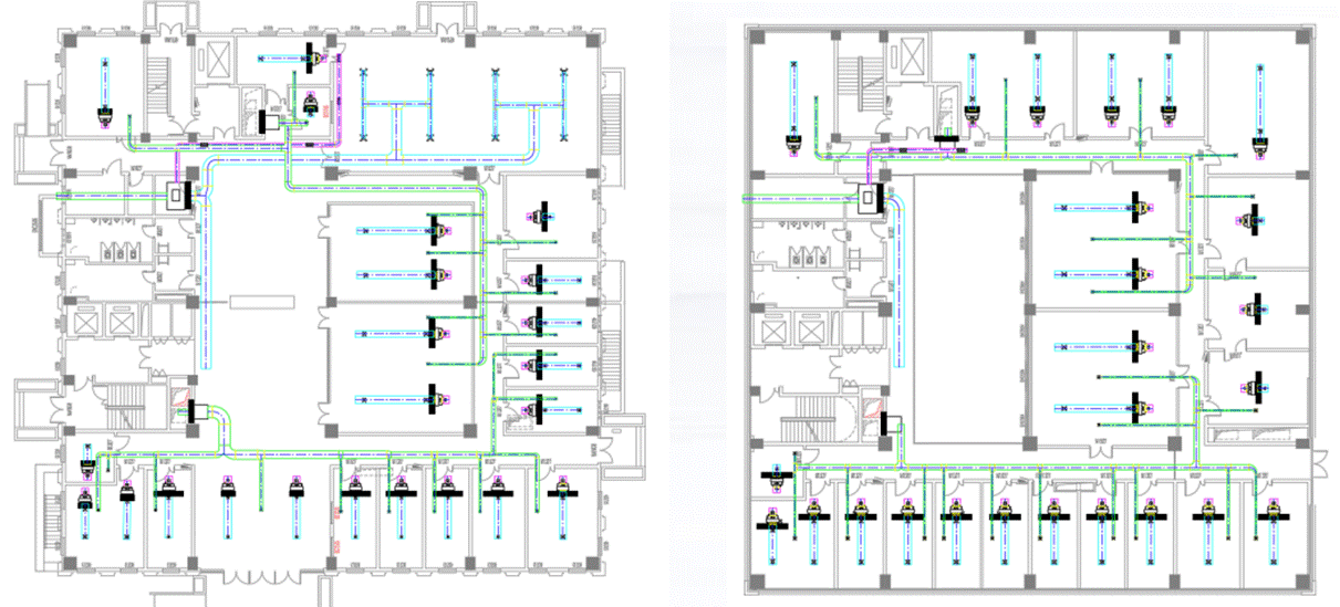
图12. 办公楼(部分)风系统布置图
7.在此期间撰写设计说明书,完成设计成果与文字内容的同步。
三、下一步工作计划
1.进一步完成整层建筑的风管和水管的布置,修改管道的标高和尺寸的过程中要注意尺寸变化的循序渐进,完成系统的水力计算并与所选机组进行校核。
2. 以系统计算结果为依据,运用科学的方法对水泵、冷却塔进行选型,同时为空调系统全面配备机组设施,保障系统稳定高效运行。
3. 严格参照专业制图规范,对现有工程图进行深度修改,精准绘制风系统图、水系统图、机房图以及系统流程图,确保图纸质量与专业性。
4. 从内容完整性、准确性、创新性等多个维度对设计说明书进行完善,构建起一个严谨、科学的内容体系;并且,以专业的态度和充分的准备,为毕业设计的最终评阅及答辩环节做好全方位的筹备。
问题一:关于“风机盘管+新风”系统,新风是以什么方式通入房间的?是否达到了空调风系统设计与空气处理过程中的统一?
回答:本次设计的“风机盘管+新风”系统是新风机直接把新风从风井中抽出,再顺着新风管通入到功能房间中,与风机盘管处理后的回风进行混合达到室内状态点,其中,风机盘管处理只室内回风不需承担新风量。在空气处理过程中,考虑的是新风不承担室内焓值,与所设计的风系统有出入,因此还需要进一步修改完善。
问题二:一层中庭的喷口送风的喷口速度是多少?是否能满足射程要求?
回答:一层中庭由于建筑特性不能采用上送上回形式,因此采用了喷口侧送风,在中庭的西侧安装球形喷口来承担一层中庭以及走廊的负荷,本次设计的球形喷口直径为0.23m,射程校核满足要求,但是喷口送风速度为4.03m/s,与工程实际情况相比速度偏小,因此还需要后续文献的查找校核,从而使得本次办公大楼的空调设计更加符合工程规范。
通过这次毕业设计,我对暖通专业的基础理论和专业知识有了更为系统、深入的理解。在本次的“武汉市某办公大楼空调系统设计”中,我深入研究了冷热负荷计算方法、空气处理过程,不仅掌握了其原理,还学会了如何在实际项目中灵活运用,这让我对专业知识的学习不再局限于书本,而是有了更直观、更深刻的认识。此外,在毕业设计的过程中,我熟练掌握了天正暖通软件,这在暖通系统的设计、模拟和分析中发挥着重要作用,大大提高了我的工作效率和设计质量,也使空调设计更为清晰直观,拓宽了我的视野。毕业设计并非一帆风顺,在负荷计算、风系统设计中风管布置的解决过程中,我遇到了诸多挑战。我通过查阅大量文献、请教老师和同学,不断尝试新的方法和思路,正是这些问题,锻炼了我独立思考和解决问题的能力,让我的专业实践能力有了进一步地提升。
此外,本次的设计也逐渐培养了我的工程意识。暖通系统的设计不仅要满足建筑的舒适性和节能性要求,还要考虑工程的可行性、经济性和安全性。在冷热源选型过程中,我学会了综合考虑各种因素,选择最适合的设备和方案。同时,我也了解到了空调设计中的一些基本流程和规范,明白了工程设计与实际运用的冲突与联系,这对我今后从事暖通工程设计具有重要的指导意义
答辩结束后,评委老师的点评和建议让我对自己有了更客观、更全面的认识。我认识到自己在设计过程中存在一些不足之处,如风管和风口布置的不合理等。这些不足之处将成为我今后学习和改进的方向。